Nu finns möjligheten att hyra en komplett och flexibel lagerfastighet om totalt <strong>5 290 kvm</strong> i <strong>Sätra industriområde</strong>, endast 10 km söder om centrala Stockholm – med <strong>direkt anslutning till E4/E20</strong> och goda kollektivtrafikförbindelser.
<strong>Fastigheten erbjuder:</strong> <strong>Lager och produktion – 4 330 kvm</strong>
Stora, öppna ytor med <strong>takhöjd om 5–6 meter</strong>
Två lasthus samt lastkajer med totalt <strong>sju portar</strong> för effektiv logistik
Möjlighet att installera <strong>markport</strong> vid behov
<strong>Hög elkapacitet (ca 800 A)</strong> – lämpar sig utmärkt för produktionsverksamhet
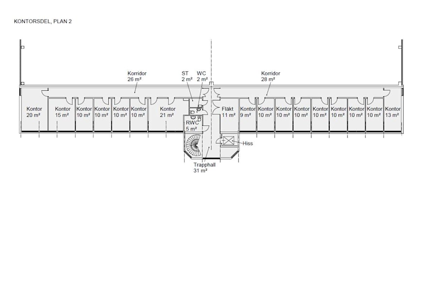
<strong>Kontor – 960 kvm</strong>
Fördelat på tre plan med <strong>hiss och trappa</strong>
Funktionella och flexibla ytor med mötesrum, <strong>pentry, matsal, dusch, omklädningsrum och WC</strong>
<strong>Gårdsyta – 4 000–5 000 kvm</strong>
Inhägnat område för <strong>lastning, uppställning eller parkering</strong>
<strong>Läget – Sätra industriområde</strong>
Fastigheten ligger i ett <strong>etablerat företagsområde</strong> med närhet till både <strong>Sätra centrum</strong> och <strong>Skärholmen</strong>, där det finns ett brett serviceutbud med butiker och restauranger. Området är logistikvänligt, med snabb access till stora trafikleder och <strong>goda kommunikationer via tunnelbana och buss</strong>.
Byggår: 1988
Planlösning: Planritning finns bland bilder/PDF.
Omgivning
Företag i närheten: Opus Bilprovning, Swedol, Areco Direct, Peugeot och Dagab
Parkeringsmöjligheter/garage: Goda parkeringsmöjligheter på fastigheten
Närservice: Brett serviceutbud av restauranger, butiker, gym, matbutiker och apotek i Sätra centrum samt Skärholmen centrum