På Testvägen 7 i Arlöv uppförs en ny fastighet avsedd för verksamheter med behov av både lager- och kontorsytor. Lokalen utformas med möjlighet till viss anpassning utifrån hyresgästens verksamhet.
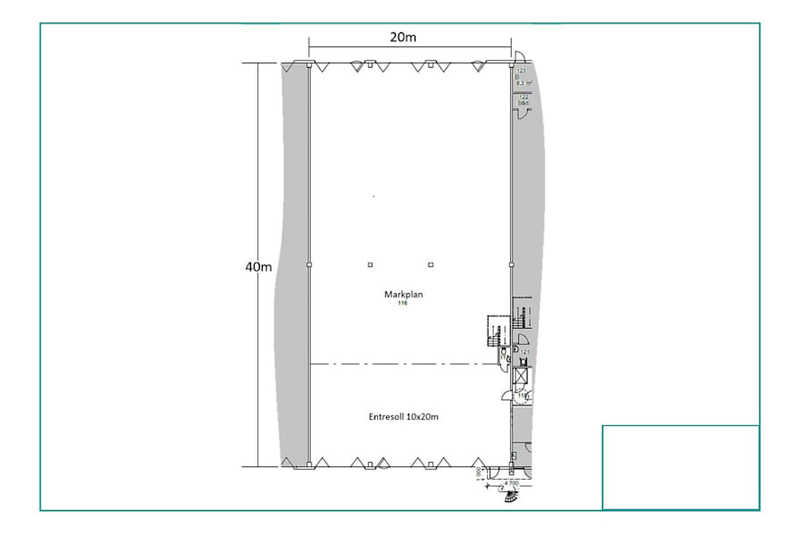
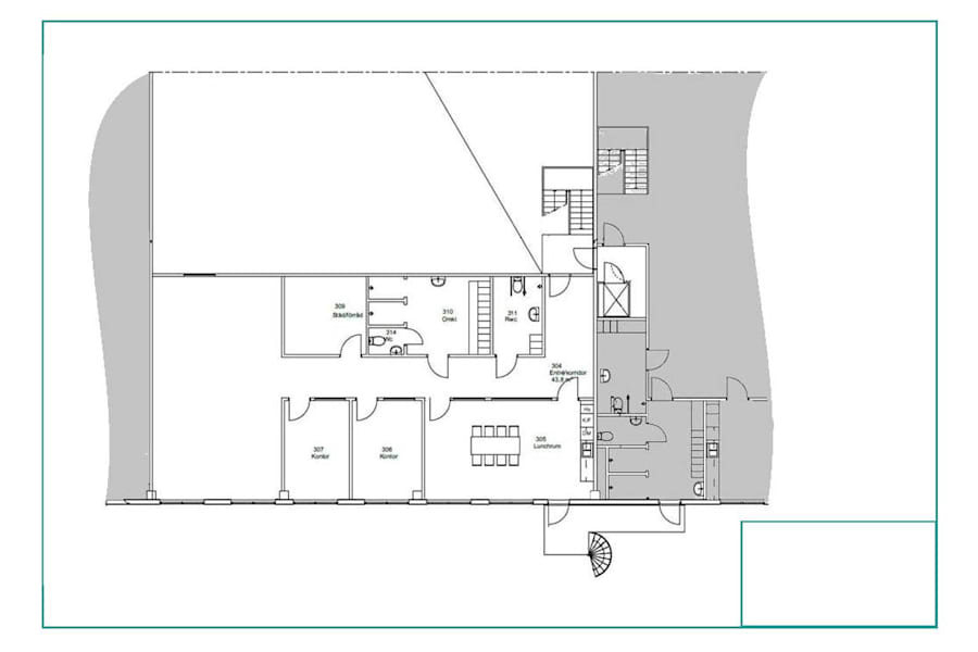
Lokalen är fördelad på cirka 800 kvm lager samt cirka 200 kvm kontor på entresolplan.
Lagerytan får en fri höjd om cirka 8,5 meter och cirka 6,5 meter under entresol. Lokalen utrustas med sex portar om cirka 5 x 5 meter, placerade med tre portar på vardera sida. Golvvärme installeras i hela plattan och byggnaden anpassas för att hantera tung trafik, med möjlighet för fordon och maskiner att köra in.
Fastigheten är inhägnad, med gemensam in- och utfart.
I anslutning till fastigheten etableras NTB Service AB, som planerar att flytta in under hösten 2026. Bolaget arbetar med service och reparationer av tunga fordon.
Utförande
Fastighetsbeteckning: Burlöv Tågarp 16:3
Byggår: 2026
Omgivning
Parkeringsmöjligheter/garage: Det finns goda parkeringsmöjligheter på fastigheten.