<strong>Belägen i markplan med goda lastmöjligheter och utmärkt skyltläge! Garage finns i huset där det även finns lagerytor att hyra! Lagerytor finns att hyra i garageplanet.
</strong>
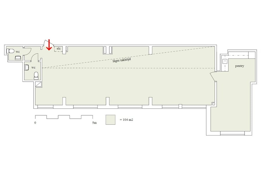
Lokalen har idag en öppen planlösning som på ritningen. Pentry med matplats finns placerat längst in i lokalen och wc i nära anslutning till entrén. Lokalen är idag stomren och det kommer att vara möjligt att få påverka både ytskikt och planlösning. I det fall att kontorsrum önskas så går det att bygga, men då det är en fördyrande anpassning kommer troligtvis hyresnivån att bli något högre än om lokalen hyrs med en öppen planlösning.
<strong>Ventilation:</strong> Ventilationen i lokalen är en ny mekanisk till och frånluft.
<strong>Bredband:</strong> Stokab finns anslutet till fastigheten för bredband via fiber. Tidigare hyresgäst har haft bredband via Tele2 (före detta ComHem).
<strong>Skyltläge:</strong> Lokalen har ett mycket bra skyltläge ut mot Vanadisvägen och det finns möjlighet till en större skylt på husfasaden (dock kommer troligen nytt skyltlov att erfordras).
<strong>Lager:</strong> Det finns möjlighet att hyra extra lageryta i garageplanet.
Passande verksamheter kan förslagsvis vara alla typer av kontorsverksamheter, showroom samt postorderföretag som behöver kontor samt ett mindre lager.
Byggår: 1971
Omgivning
Omgivning/natur: Enkehusparken beläget alldeles intill fastigheten samt gångavstånd till Sankt Eriks Parken, Observatorielunden samt Vanadislunden med Vanadisbadet.
Parkeringsmöjligheter/garage: Det finns garage i huset och det kan vara möjligt att hyra två platser utomhus strax utanför huvudentrén. Annars gäller parkering på kringliggande gator enligt stadens tariff. Cykelparkering med cykelställ på fastigheten samt cykelgarage med plats för omkring 350 st cyklar vid Odenplan.
Närservice: Vid Odenplan finns all tänkbar service så som caféer, restauranger, Ahléns, butiker etc. På Norrtullsgatan 13 i närheten ligger Coop forum som har öppet till 21.00 alla dagar.
Skyltläge: Lokalen har ett mycket bra skyltläge ut mot Vanadisvägen och det finns möjlighet till en större skylt på husfasaden (dock kommer troligen nytt skyltlov att erfordras).