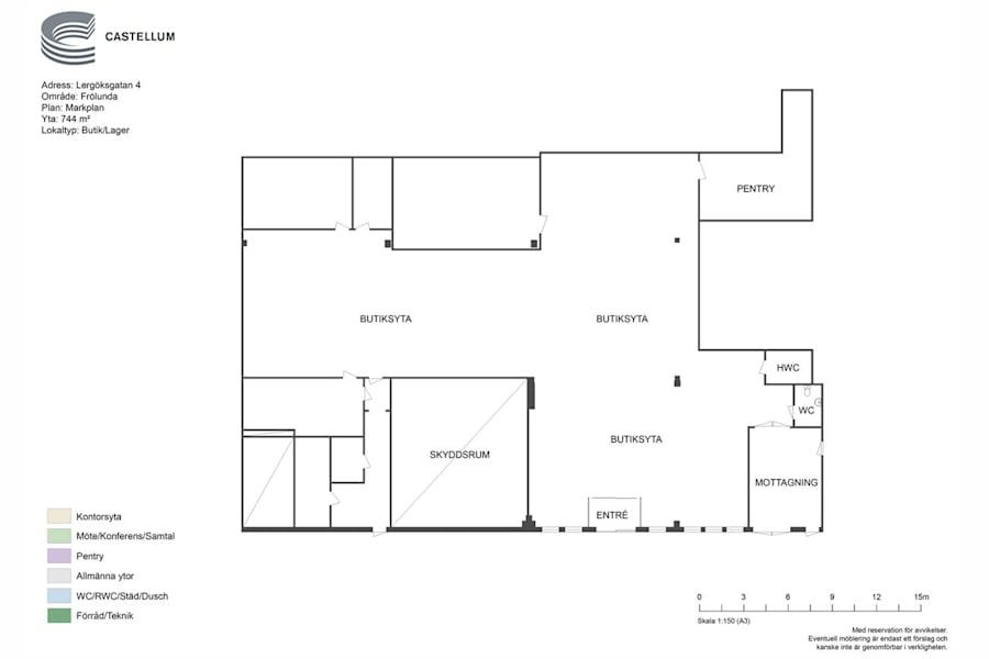
Välkommen till en rymlig och flexibel butiks- och lagerlokal i markplan. Denna lokal erbjuder en praktisk lösning för verksamheter som söker en kombination av butiksyta och/eller lager. Lokalen har en väl tilltagen öppen yta samt viss rumsindelning.
Funktioner och faciliteter
Lastkaj: Underlättar smidig in- och utlastning av varor.
Butiksentré: Kundvänlig entré för enkel access och ett professionellt intryck.
Personalutrymmen: Mindre personaldel med pentry och omklädning.
Besöksparkering: Utanför butiken finns det gott om besöksparkering
Renovering efter behov:
Lokalen kommer att renoveras och anpassas efter önskemål, vilket innebär att du kan få en skräddarsydd lösning som passar just din verksamhet.
Läge och tillgänglighet:
Lokalen är strategiskt placerad i närheten av Frölunda Torgs köpcentrum, vilket ger tillgång till ett stort flöde av kunder och närhet till andra butiker och service. Skyltläget mot Västerleden säkerställer en hög synlighet för din verksamhet.
Denna lokal är ett perfekt val för företag som behöver en kombination av lager och butik i ett lättillgängligt och välbeläget område. Kontakta oss för mer information eller för att boka en visning!
Våningsplan: 1
Omgivning
Omgivning/natur: I Frölunda finns både affärer och grönområden på gångavstånd hav och skärgård likaså!
Närservice: Med gångavstånd till Frölunda torg går det snabbt och smidigt att uträtta sina ärenden. Här finns bank, systembolag, och allehanda affärer samlade i ett inomhuscentrum. Här ligger också Frölunda kulturhus där möjlighet till bad och andra sportaktiviteter finns. I närheten finns Rudalens friluftsområde där fina strövområden, joggingspår samt även en liten sjö ligger. Frölunda torg har gott om restauranger. I närområdet ligger en kinarestaurang. Något du saknar?