Nu finns chansen att etablera din verksamhet i en attraktiv och välutrustad lokal med oslagbart läge vid E4:an, trafikplats Åby. Här får du inte bara ett strategiskt läge med snabb access till vägnätet, utan även ett fantastiskt skyltläge som ger maximal synlighet för kunder och samarbetspartners.
<strong>Lokalens egenskaper:</strong>
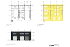
<strong>- Flexibla kontorsytor</strong>: Ca 332 kvm på övre plan med både öppna ytor och enskilda kontor.
- <strong>Rymliga personalutrymmen</strong>: Stort lunchrum, omklädningsrum och entréhall om totalt 279 kvm på nedre plan.
- <strong>Effektiv lageryta</strong>: 103 kvm med hela 5,5 meters takhöjd, perfekt för förvaring och logistik.
- <strong>Generösa uppställningsytor</strong>: Inhägnad grusplan på hela 1 100 kvm för fordon, material eller containers.
- <strong>Smidig logistik</strong>: Utvändig lasthiss och landgång, båda anpassade för lastpallar, vilket möjliggör effektiv hantering även på övre plan.
Denna lokal är perfekt för företag som behöver en kombination av kontor, lager och stora uppställningsytor – allt i ett oslagbart läge med hög synlighet.
Kontakta oss idag för mer information eller boka en visning!
Omgivning
Omgivning/natur: I Åby ligger ett modernt industri- och logistikområde beläget cirka fem kilometer norr om centrala Norrköping. Området erbjuder ett optimalt skyltläge mot E4:an, med cirka 26 000 passerande fordon per dygn, vilket ger god synlighet för verksamheter.
Företag i närheten: Casall, WSP, Svea Solar, Max Hamburgare, CaféBar