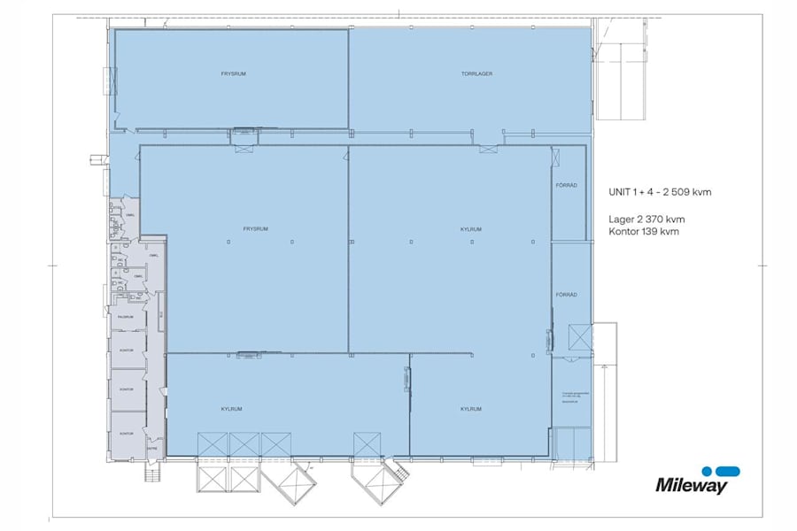
Nu finns möjlighet att hyra en välutrustad lagerlokal inklusive kontor om totalt 2 370 kvm, perfekt för livsmedelstransport och kylvaror.
Lokalens fördelar:
Effektiv lagerhantering – anpassade ytor för livsmedelslogistik:
Utmärkta lastmöjligheter – 4 lasthus, varav 2 med sidoinlastning, samt 1 markport med truckrum och laddningsstation. Möjlighet att installera ytterligare 2 lasthus/lastportar.
Flexibla kontorsytor – 139 kvm kontor med tre rum för 8–10 personer, uppehållsrum med kök/pentry, omklädningsrum och WC.
Goda parkeringsmöjligheter – beläget inom inhägnat område med möjlighet att hyra till ett garage om 3 900 kvm.
Läge och kommunikationer:
Denna fastighet erbjuder en optimal kombination av funktionalitet, logistik och säkerhet. Kontakta oss för mer information eller visning!
Ytor/Planlösning
Se planritning bland bilder/PDF.
Ekonomi
Kontraktlängd: Förhandlingsbart
Kontrakttyp: Förstahandskontrakt
Tillträde: Enligt överenskommelse.
Utförande
Fastighetsbeteckning: Utgrunden 8
Byggår: 1962
Renoveringsår: 2013
Våningsplan: 1 av 1
Takhöjd: 4,4 m
Omgivning
Företag i närheten: PostNord, Mechanum, INR Försäljning Sverige AB, Exakta Print AB och Bring
Parkeringsmöjligheter/garage: Goda parkeringsmöjligheter på fastigheten
Vägbeskrivning: Nära anslutning till E6/E20 och E22